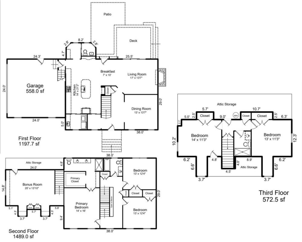
**Showings begin Thursday the 22nd.**This very heavily updated home is centrally located by some of the best that Charlotte offers. It is a rare find. Minutes to SouthPark or Ballantyne, Matthews or Pineville. Easy access to I-485. Don’t miss the miles of sidewalks that connect to schools, the greenway, parks and shopping. Very desirable schools. This nearly all brick home features a new roof in 2021, James Hardie siding was used to replace any old window trim and eaves, new windows in 2021 (63k in value on that alone). Fully updated and permitted kitchen, almost 20k in SS appliances, updated master bath, New HVAC system upstairs (2022), 10k in custom plantation shutters, updated garage with epoxy floors and custom storage systems. All appliances and playground equipment will convey. Voluntary HOA. The sellers adore this home and area but needed a little more space for the family.
| MLS#: | 4336252 |
| Price: | $1,250,000 |
| Square Footage: | 3260 |
| Bedrooms: | 5 |
| Bathrooms: | 3.1 |
| Acreage: | 0.45 |
| Year Built: | 1986 |
| Type: | Single Family Residence |
Based on information submitted to the MLS GRID as of 2026-01-22 06:00:00. All data is obtained from various sources and may not have been verified by broker or MLS GRID. Supplied Open House Information is subject to change without notice. All information should be independently reviewed and verified for accuracy. Properties may or may not be listed by the office/agent presenting the information. Some IDX listings have been excluded from this website.
Contact An Agent:















































